Annexation Name
|
Annexation Details
|
Annexation Status
|
Annexation Map
|
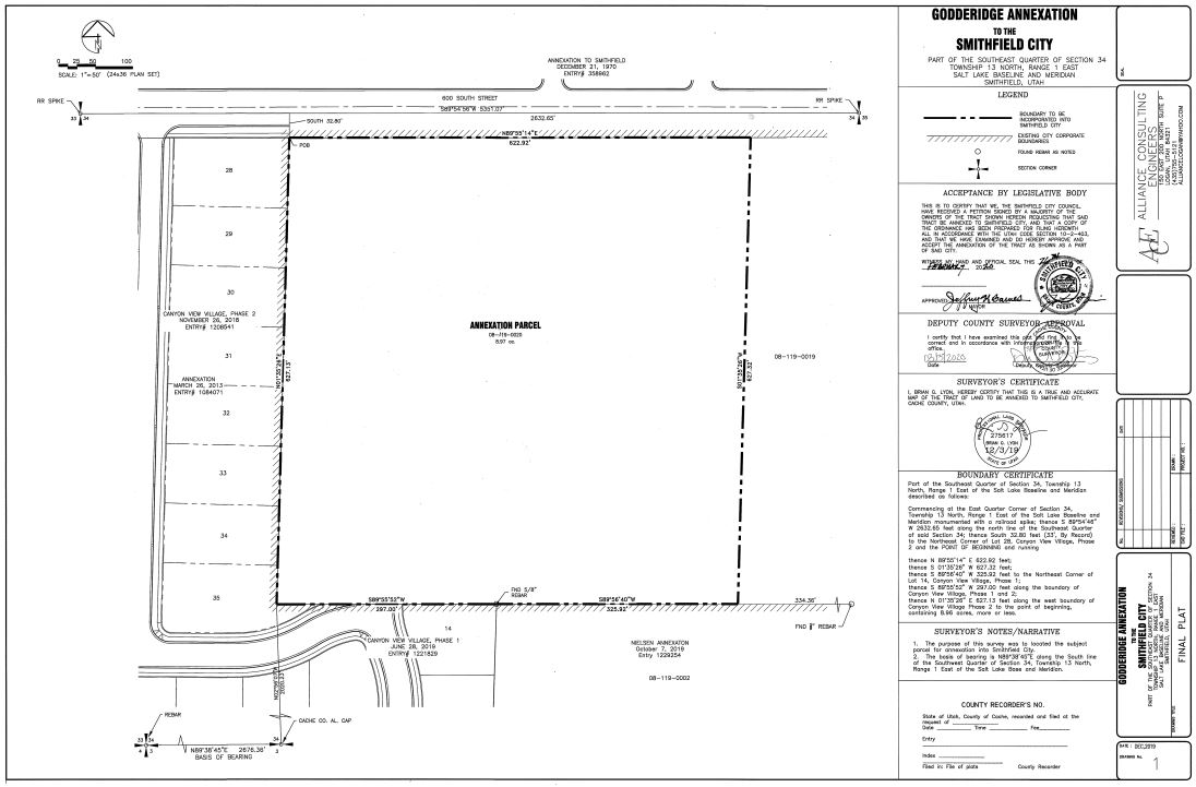
| Goddenridge Annexation |
- Parcel Number: 08-119-0020
- Parcel Size: Approximately 8.97 Acres
- Annexing into Smithfield City from Unincorporated Cache County
|
Under Review with Lt. Governor's Office |
 |
| Campbell Annexation |
- Parcel Number 03-006-0016
- Parcel Size: Approximately 25.14 Acres
- Annexing into Logan City from Unincorporated Cache County
|
Complete |
 |
| Klopfenstein Annexation |
- Parcel Numbers 13-013-0005 & 13-013-0006
- Parcel Sizes: Approximately 36.09 Acres
- Annexing into Trenton Town from Unincorporated Cache County
|
Complete |
 |
|
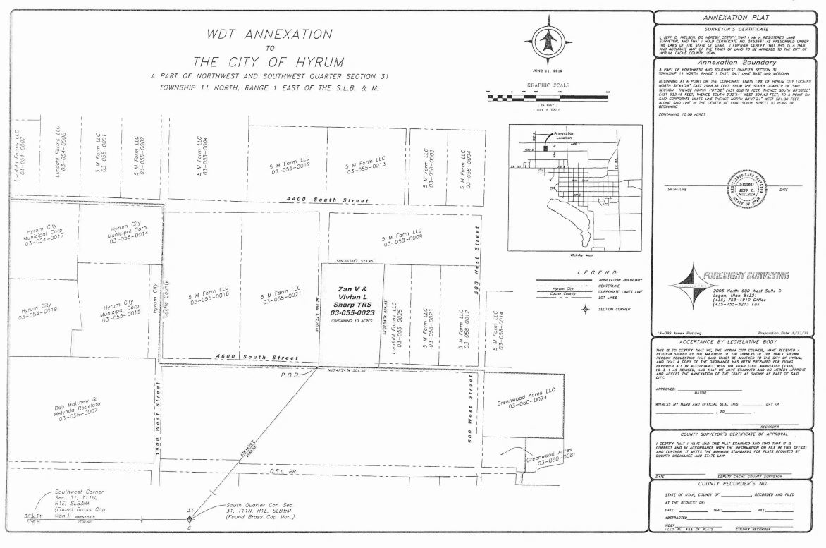
Top Dog Annexation
(aka WDT)
|
- Parcel Number: 03-055-0023
- Parcel Size: Approximately 10 Acres
- Annexing into Hyrum City from Unincorporated Cache County
|
Complete |
 |
| Wesley Nelson Farms Annexation |
- Parcel Number: 03-007-0019
- Parcel Size: Approximately 57.734 Acres
- Disconnection from Logan to Unincorporated Cache County
- Annexing into Nibley City from Unincorporated Cache County
|
Complete |
 |
| Olsen Annexation |
- Parcel Numbers: 02-117-0023, 02-117-0038, 02-117-0033, 02-117-0024, 02-117-0032 & 02-127-0002
- Total Size: Approximate 26.2 Acres
- Annexing into Millville City from Unincorporated Cache County
|
Withdrawn |
 |
| Zollinger Annexation |
- Parcel Numbers: 02-117-0015, 02-117-0019, & 02-124-0009
- Total Size: Approximately 16.4 Acres
- Annexing into Millville City from Unincorporated Cache County
|
WIthdrawn |
 |
| Simmons Disconnection |
- Parcel Number: 02-117-0033
- Disconnection Size: Approximately 0.4 Acres
- A fragment of a parcel is included within Providence Boundaries
- Disconnection from Providence to Unincorporated Cache County (along with the rest of the parcel)
- Included in the Olsen Annexation into Millville City
|
Public Notice/Comment Period |
 |
| Seamons Annexation |
- Parcel Number 11-020-0002
- Annexation from Cache County to Mendon
- Approximately 35.10 Acres
|
Petition Denied |
 |
|
Henderson Annexation
- Harvey & Lewis
|
- Parcel Numbers 03-006-0022 & 03-006-0026
- Approximately 4.07 Acres
- Annexation from Cache County to Logan
- Adjacent to recent "Campbell annexation"
|
Public Hearing Scheduled |

|
|
Mike Zollinger Annexation
(Formerly Zollinger & Olsen Annexations
|
- Parcel Numbers 02-117-0023, 02-117-0038, 02-117-0033, 02-117-0024, 02-117-0002, 02-117-0015, 02-117-0019, and 02-124-0009
- Approximately 42.6 Acres
- Annexation from Cache County to Millville
- Previously proposed as two annexations
|
Public Hearing Scheduled |


|
| Freed Annexation |
- Parcel Number 10-043-0007
- Annexation from Cache County to Wellsville
- Approximately 22.18 Acres
|
Public Hearing Scheduled |
 |